Аренда офисов в БЦ "ВЕСТА"

Офис 86,43 м² на 2 этаже

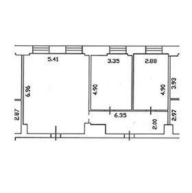
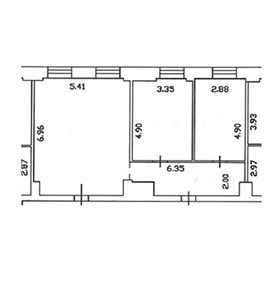
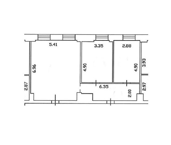
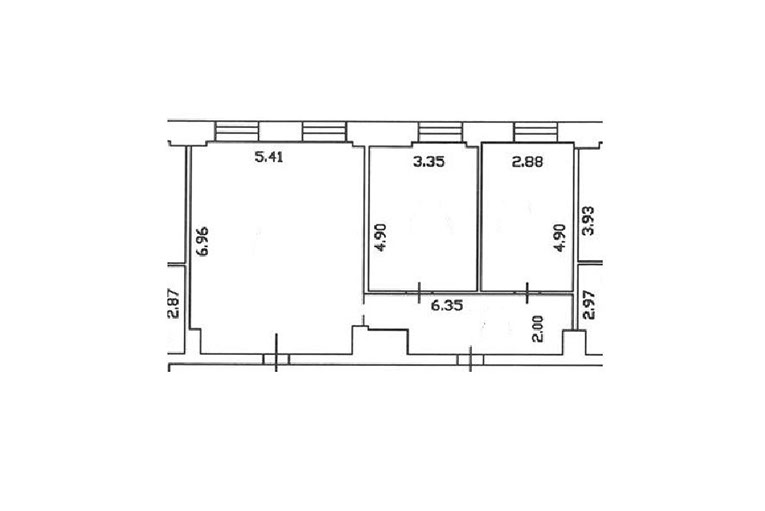
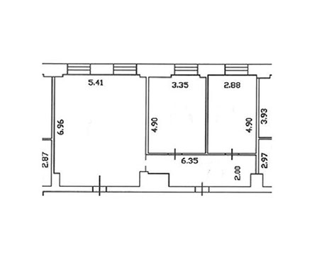
Предлагаем в аренду офис 203-205 на 3 кабинета площадью 86,43 м², на 2 этаже, 2 проходная. В офисе ремонт: на полу ламинат, металлопластиковые окна, подвесные потолки, стены окрашены.

На территории есть 3 кафе, нотариус

Расположение: Киев, Оболонь/Почайна, ул. В.Хвойки, 21, БЦ «Веста».

Звоните! Будем рады подобрать вам подходящий вариант!

Контакты: (067)235-93-14, (067)409-41-22, (044)586-53-39, (067)505-89-64

 

СМОТРЕТЬ ДРУГИЕ ОФИСЫ

Обращайтесь в компанию "Веста" - мы являемся владельцами коммерческой недвижимости в разных районах Киева (Петровка, Дарница, Броварской проспект). Предлагаем в аренду офисы и складские помещения (капитальные склады и ангары), предоставляем клиенту полную информацию: фото, планирования, тарифы. Без комиссий. Без скрытых платежей. Индивидуальный подход к каждому клиенту: возможность арендных каникул, перепланировка и редизайн помещений по желанию заказчика.

© 2017. Все права защищены