Оренда офісів у БЦ "ВЕСТА"

Офіс 107,00 м² на 2 поверсі

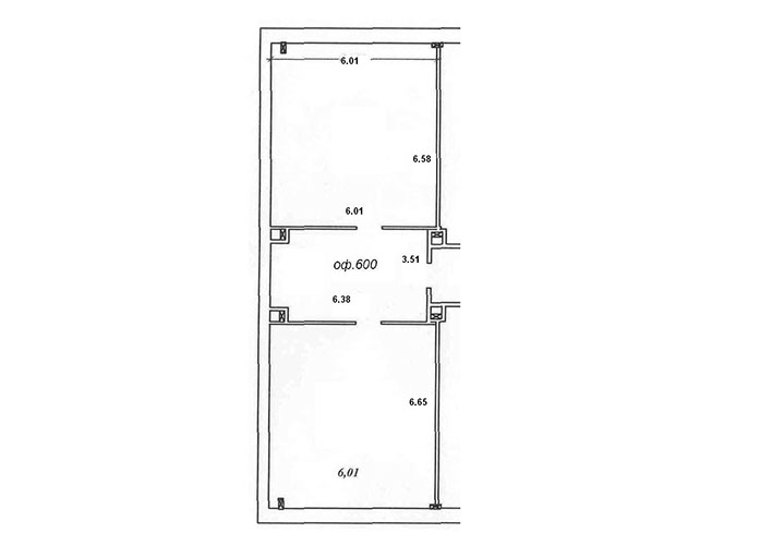
Пропонуємо офіс 600 на 2 кабінети площею 107,00 м², на 6 поверсі, 2 прохідні. В офісі ремонт – на підлозі ковролін, металопластикові вікна, підвісні стелі, стіни пофарбовані.

На території є 3 кафе, нотаріус.

Розташування: Київ, Оболонь/Почайна, вул. В. Хвойки, 21, БЦ "Веста".

Телефонуйте! Будемо раді підібрати вам відповідний варіант!

Контакти: (067)235-93-14, (067)409-41-22, (044)586-53-39, (067)505-89-64

 

ДИВИТИСЬ ІНШІ ОФІСИ

Звертайтеся в компанію "Веста" - ми є власниками комерційної нерухомості в різних районах Києва (Петрівка, Дарниця, Броварський проспект). Пропонуємо в оренду офіси та складські приміщення (капітальні склади і ангари), надаємо клієнту повну інформацію: фото, планування, тарифи. Без комісій. Без прихованих платежів. Індивідуальний підхід до кожного клієнта: можливість орендних канікул, перепланування і редизайн приміщень за бажанням замовника.

© 2017. Всі права захищено